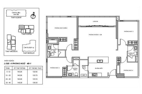
Bán hoặc thuê căn hộ chung cư 4 phòng ngủ tại An Phú, Quận 2, Hồ Chí Minh
Quận 2, Hồ Chí Minh
₫ 48 tỷ
(₫ 240,000,000 / m2)
-
4
-
4
-
200 m2
-
Căn hộ chung cư
-
Swimming pool
-
Air conditioning
-
Gym
-
Internet
-
Security
-
Car park
-
Garden
-
Balcony
-
Tennis court
-
+23
Cần bán Căn hộ chung cư diện tích 200 m2, gồm có 4 phòng ngủ Và 4 phòng tắm nằm tại An Phú, Quận 2. Tiện nghi gồm có: Swimming pool, Air conditioning, Gym, Internet, Security, Car park, Garden, Balcony, Tennis court, Sauna, Children's area, Equipped kitchen, Electricity, Panoramic view, Concierge, Library, Elevator, Terrace, Water, Patio, Heating, Alarm, Fireplace, Built-in...