Vinhome Central Park lầu cao có căn hộ Park 3 với 2 phòng ngủ cho thuê
Ho Chi Minh, Binh Thanh District, Phuong 22
Rent: ₫ 25,972,486
/
month
Full description
Listing ID: 58621
2 Bedroom Apartment for rent in Phuong 22, Ho Chi Minh
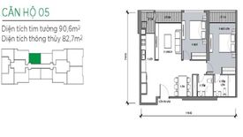
Vinhome Central Park quận Bình Thạnh là một trong những vị trí đắc địa bậc nhất của trung tâm TP. Hồ Chí Minh, kết nối linh họat với các khu vực quan trọng trong thành phố bằng hệ thống giao thông thuận lợi bằng cả đường bộ, đường sắt, đường thủy và hệ thống tàu điện ngầm Bến Thành – Suối Tiên. Cho thuê căn hộ 2 phòng ngủ tại Park 3 -XX.05 dự án Vinhome Tân Cảng. - Diện tích căn hộ 83 m2, 2 phòng ngủ, 2 WC, nội thất hiện đại. - Giá cho thuê: $1,100 / tháng ( Bao phí). - Tiện ích chung: Khu vui chơi, phòng Gym, hồ bơi, sảnh đón khách, trung tâm thương mại,.... Liên hệ để xem nhà và được tư vấn :
-
– Ms. Yến (English, 中文),
-
mr Hiền Proview Mặt bằng căn hộ:
-
– Ms. Yến (English, 中文),
-
mr Hiền Proview Mặt bằng căn hộ:
Key features
-
Beds: 2
-
Baths: 2
-
Usable area: 83 m2
