Căn hộ 1 phòng ngủ cần cho thuê tầng cao tại Vinhomes Central Park
Hồ Chí Minh, Quận Bình Thạnh, Phường 22
Giá cho thuê: ₫ 20,667,340
/
tháng
Mô tả chi tiết
ID tin rao: 75069
Cho thuê căn hộ chung cư 1 phòng ngủ tại Phường 22, Quận Bình Thạnh, Hồ Chí Minh
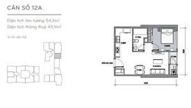
Cho thuê căn hộ Vinhomes Central Park, LP-xx.12A, gồm 1 phòng ngủ, 1 phòng tắm với diện tích 54m2, tầng cao tại Landmark Plus. Giá: $900/ Tháng Căn hộ Vinhomes Central Park – Tân Cảng , tọa lạc trên đường Nguyễn Hữu Cảnh, quận Bình Thạnh, một trong những vị trí đắc địa bậc nhất của trung tâm TP. Hồ Chí Minh, kết nối linh họat với các khu vực quan trọng trong thành phố bằng hệ thống giao thông thuận lợi bằng cả đường bộ, đường sắt, đường thủy và hệ thống tàu điện ngầm Bến Thành – Suối Tiên. Tiện ích có tại khu căn hộ Vinhomes Central Park : ♦ Trường liên cấp Vinschool Central Park, Bệnh viện đa khoa quốc tế Vinmec Central Park, Bến du thuyền sang trọng, Khu vui chơi trẻ em ngoài trời ♦ Trung tâm thương mại: Sân trượt băng trong nhà, Vinpearland Game, Rạp chiếu phim hiện đại, Công viên cây xanh ♦ Hầm gửi xe thông minh ( thẻ từ + bảng điện tử thể hiện số ô còn trống cho xe vào đậu tránh mất thời gian) ♦ Khu biệt lập ( trừ shophouse) ♦ Sảnh lobby đón khách, Sảnh lounge sang trọng ( sảnh dành cho cư dân tiếp khách rất sang trọng theo tiêu chuẩn 5 sao) ♦ Nhà sinh hoạt cộng đồng- Hồ bơi ngoài trời và cây xanh ở các cụm căn hộ, Hệ thống sân tập thể thao ngoài trời ( sân bóng đá mini, sân tennis, sân bóng rổ) ♦ Phòng tập Gym, An ninh và hệ thống camera giám sát 24/7 Vị trí: Vinhomes Tân Cảng, Phường 22, Bình Thạnh, Hồ Chí Minh, Việt Nam
Telephone number:
Thông tin chính
-
Phòng Ngủ: 1
-
Phòng Tắm: 1
-
Diện tích: 54 m2
